>>トップページ >>レンジフード/ウェザーカバー >>[高須産業] レンジフード WEP

レンジフード
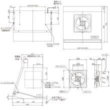
  • [高須産業] レンジフード WEP
プロペラファン
幅600mm プロペラファン 深型レンジフード/25cm羽根/電動式シャッター金属換気扇付き

※前幕板(高:100mm) は別途、専用品をお求めください

LINE

26-210-13
[高須産業]レンジフード(プロペラファンタイプ)
・600巾
自重:15.0kg

1台
38,900円(税別)
(税込 42,790円)
消費税について

購入数: